Nearby Schools
Florence HowardElementary School
Calloway SmithMiddle School
MurphyHigh School
Description
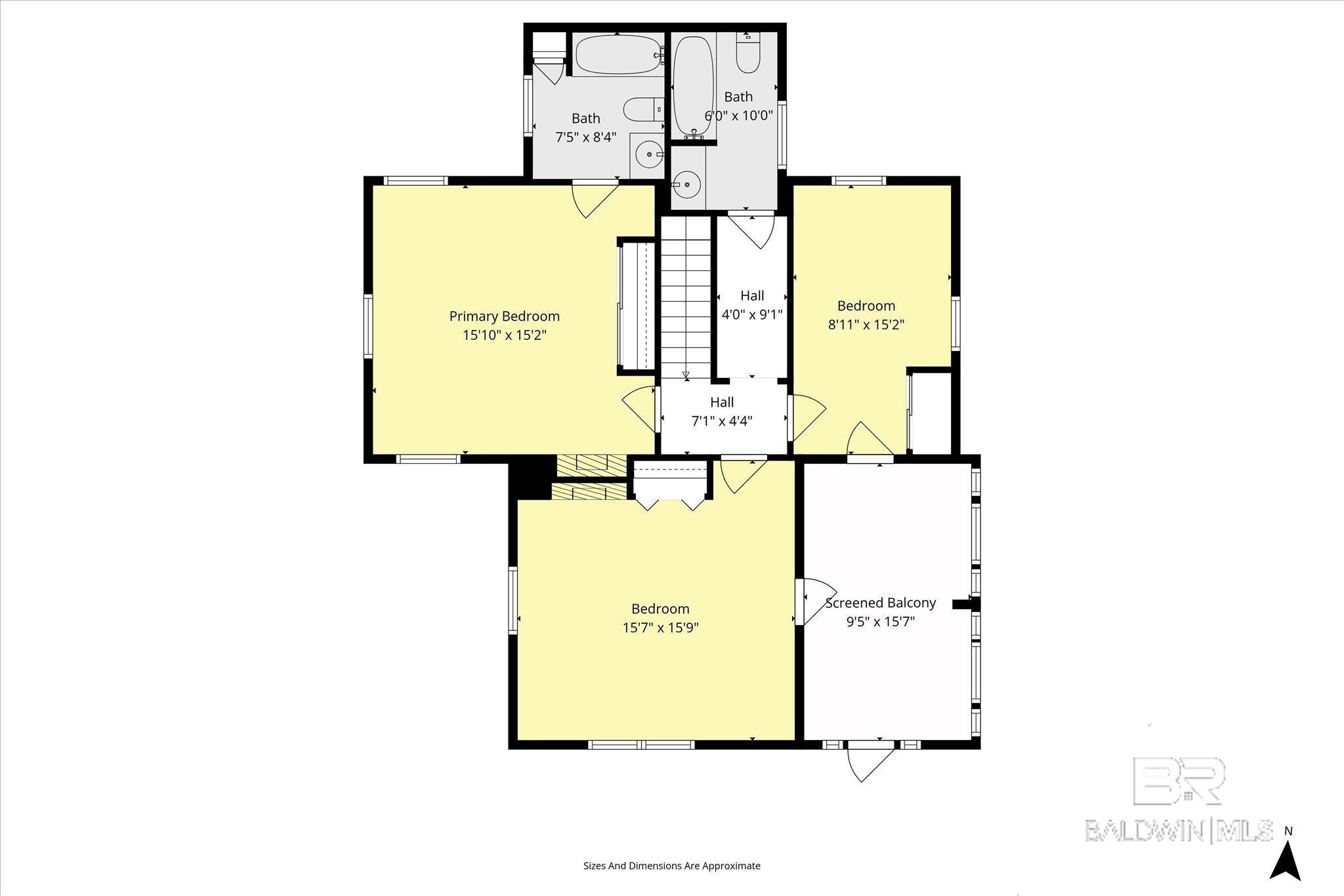
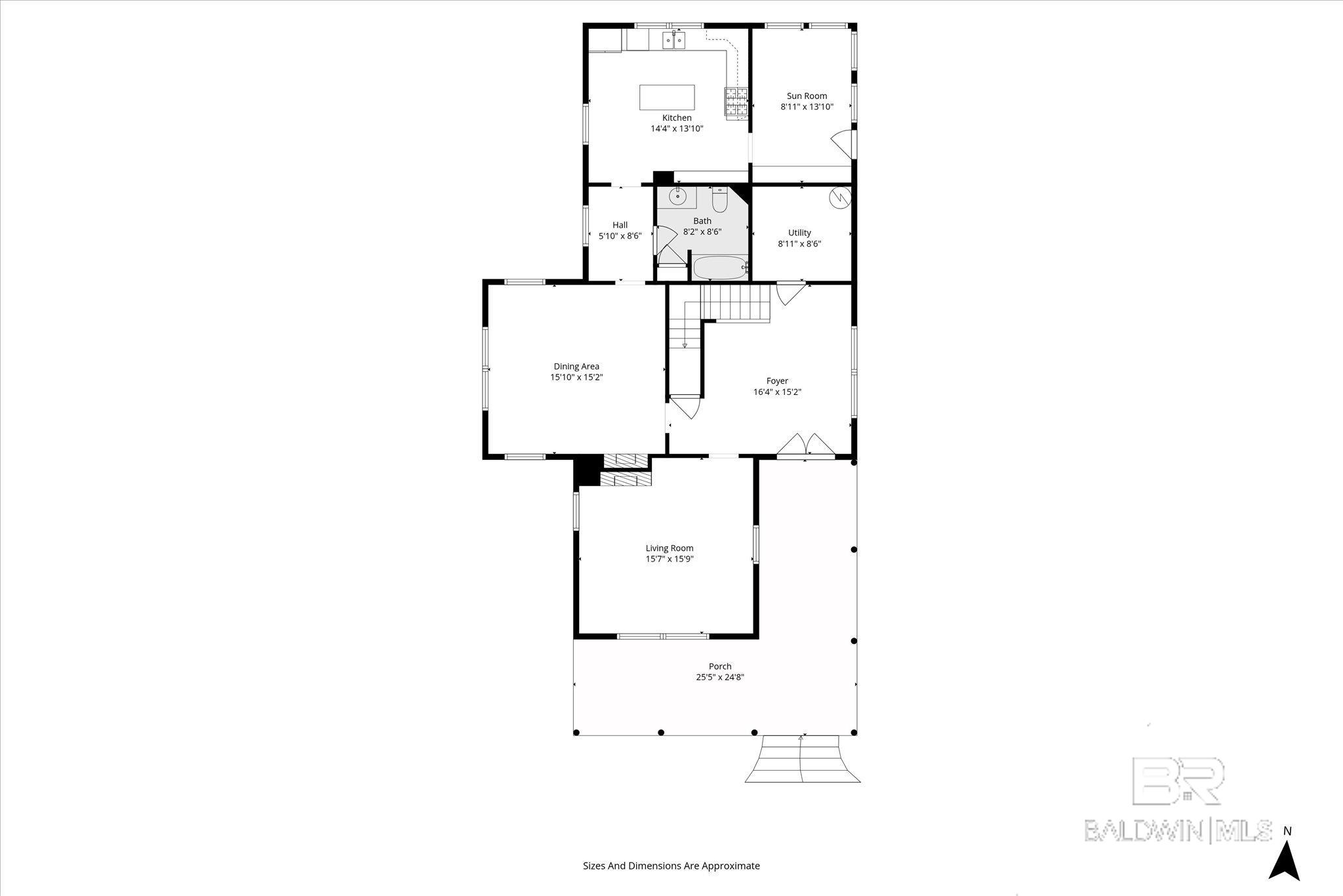
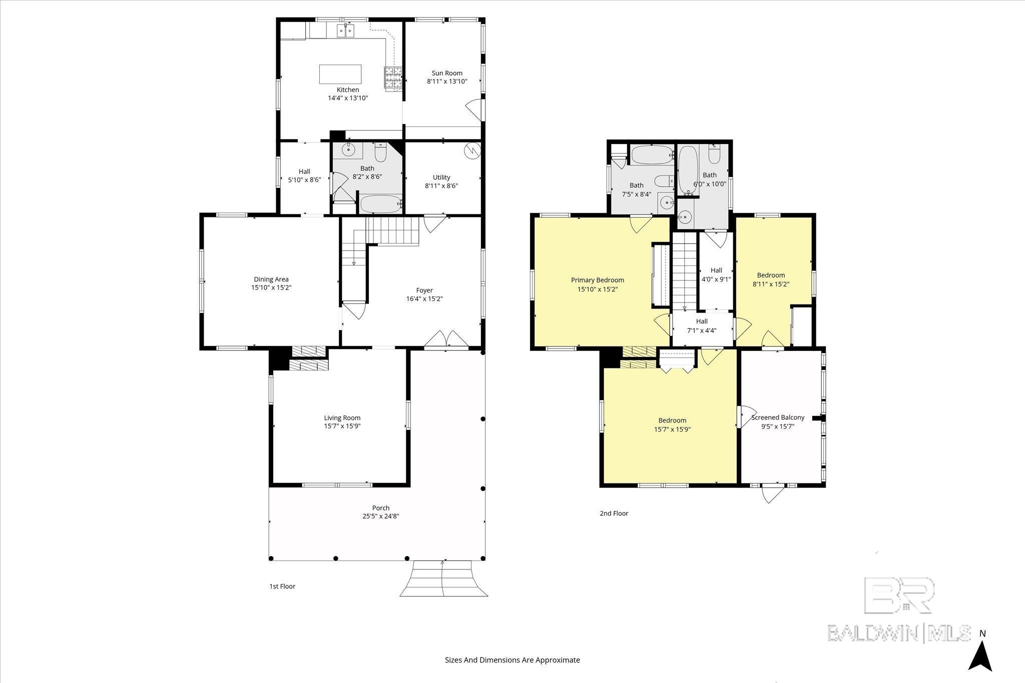
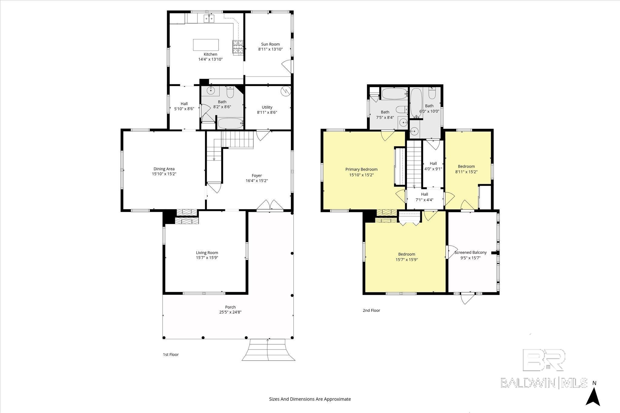
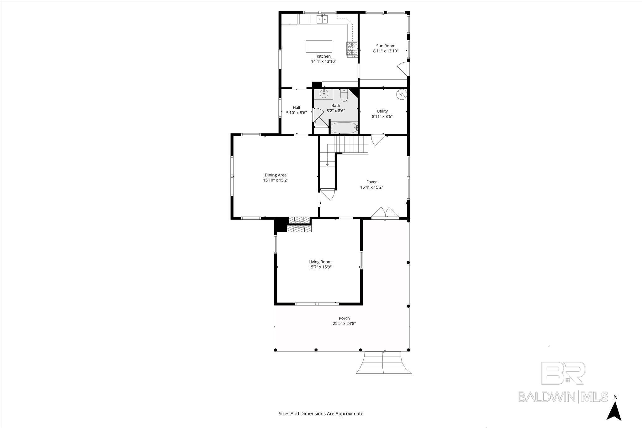
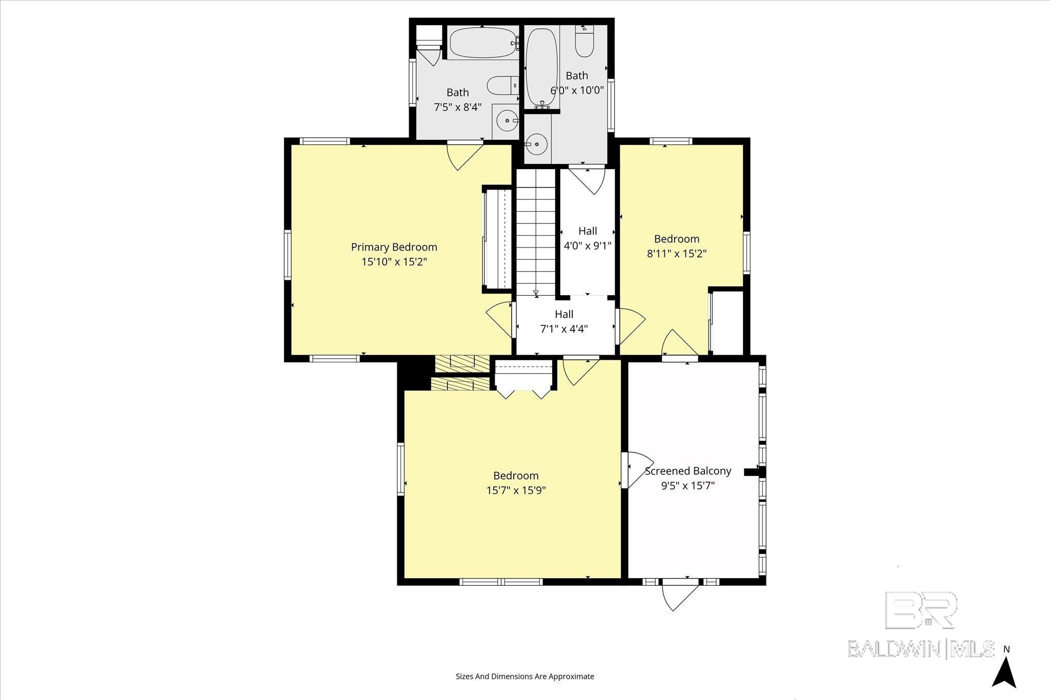
Once in a lifetime opportunity to own on the most beautiful stretch of Dauphin Street, where houses rarely come up for sale. Just a short distance to the best nurseries plus public and private schools, including Murphy, McGill-Toolen and St. Marys directly behind your backyard. Best Halloween neighborhood in the city. Supersized, (252 ft deep), fenced-in (2022) lot, enter through a private rear alleyway, the large parking lot accommodates 8 cars (2022). The backyard was re-leveled for drainage in 2022. Through the back door enter a custom built library (2022). Next is an updated kitchen with granite countertops, plus eat-in breakfast bar (2022). The entire home, except kitchen, library, and bathrooms, features hardwood.3 bedrooms (upper floor) and 3 full shower/tub bathrooms (1 lower, 2 upper, 2 with built-in closets). Extra large dining room follows, with historic fireplace (non-operable). Through the foyer is the laundry/storage room (2022), large closet, and extra large living room with historic fireplace (non-operable). Through the double front doors is a wraparound front porch facing Dauphin Street. Each floorhas its own HVAC unit, inspected and maintained under service-contract year-round (Honest Air). Up the stunning staircase are 3 bedrooms, 2 more full bathrooms, a sunroom, and a full upper balcony facing Dauphin Street. The primary bedroom has its own bathroom, plus historic fireplace (non-operable). All bedrooms have built-in closets. Buyer to verify all information during due diligence.
Location
Listed By
Similar Listings
Residential
$708,000
MLS# 991487
ACTIVE
Residential
$705,000
MLS# 990584
PENDING
Residential
$705,000
MLS# 393142
ACTIVE
Residential
$705,000
MLS# 782211
PENDING
No similar listings found
Unfortunately, we don't have any similar listings at the moment. Please remove or change some of the selected filters.
The data relating to real estate for sale on this website comes in part from the Baldwin County Association of REALTORS. The information being provided is for consumers' personal, non-commercial use and may not be used for any purpose other than to identify prospective consumers may be interested in purchasing. Information deemed reliable but not guaranteed. Updated: 20th April, 2026 11:54 PM (UTC)
Listing Office: Roberts Brothers, Inc Malbis
Attribution contact: PHONE: 251-454-2798












