Nearby Schools
Kate ShepardElementary School
Chastang-fournierMiddle School
Wp DavidsonHigh School
Description
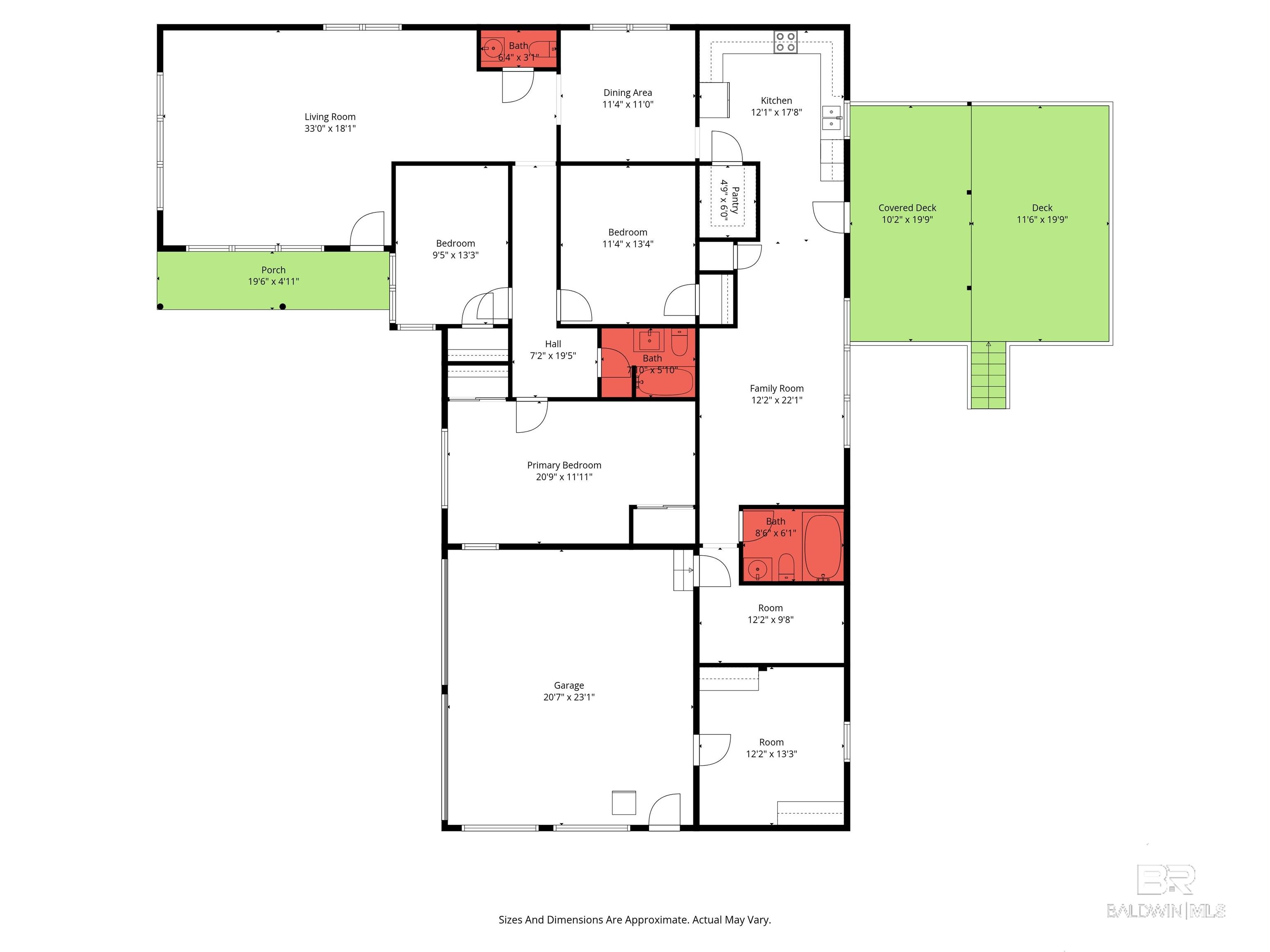
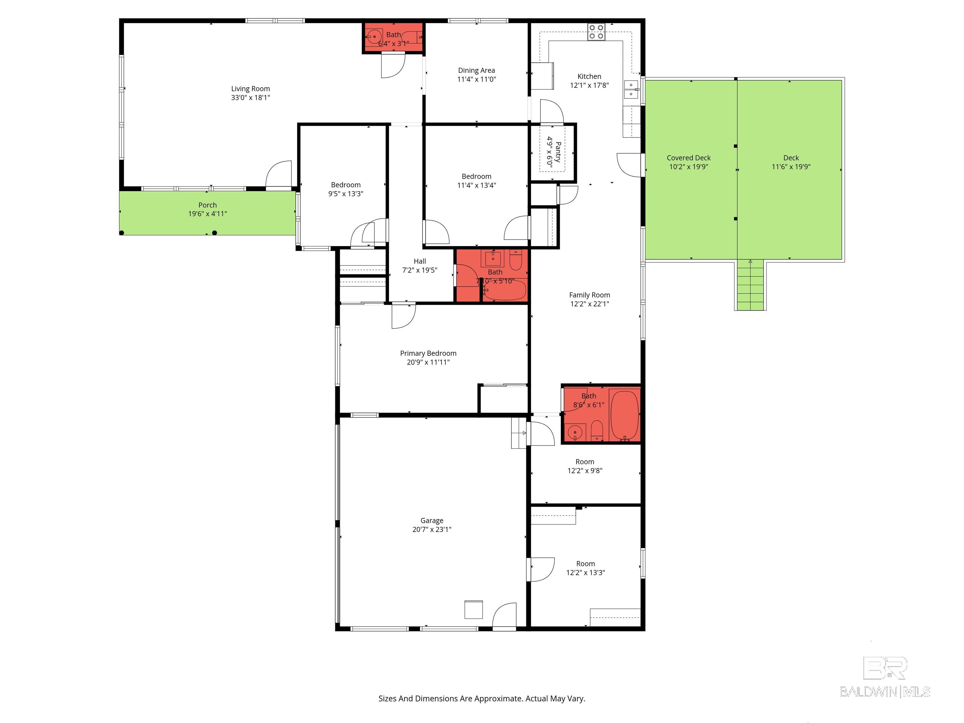
VRM: Seller will entertain offers between $259,000 and $279,000. Set on a generous lot (0.875 acres) in an established Mobile neighborhood, this home offers exceptional space both inside and out while staying close to grocery stores, restaurants, and shopping. The oversized front and backyard provide plenty of room to spread out, entertain, and enjoy outdoor living—all while maintaining a true neighborhood setting. Inside, the layout offers flexibility, fresh paint, and room to gather with a large living room plus a separate family room, creating multiple spaces for hosting, relaxing, or everyday living. Large windows throughout bring in abundant natural light and highlight the original hardwood floors and tile flooring—no carpet anywhere. The kitchen is spacious with ample cabinetry and storage, designed for both function and flow. A convenient half bath sits just off the main living area, making it ideal for guests. Step out onto the covered back deck overlooking a sprawling backyard with room for a pool, gazebo, outdoor kitchen, fire pit, garden, boat, RV, workshop, or additional storage. A long driveway provides plenty of parking, and the two-car garage includes a large utility room/workshop (12'x13') with laundry hookups and built-in cabinets. With a cozy front porch, timeless finishes, and a floor plan that offers space and character throughout, this home stands out for its size, layout, and setting. Buyer to verify all information during due diligence.
Location
Listed By
Similar Listings
Residential
$337,000
MLS# 390857
ACTIVE
No similar listings found
Unfortunately, we don't have any similar listings at the moment. Please remove or change some of the selected filters.
The data relating to real estate for sale on this website comes in part from the Baldwin County Association of REALTORS. The information being provided is for consumers' personal, non-commercial use and may not be used for any purpose other than to identify prospective consumers may be interested in purchasing. Information deemed reliable but not guaranteed. Updated: 22nd April, 2026 11:41 PM (UTC)
Listing Office: Real Broker, LLC
Attribution contact: 251-454-1170












